Baerz & Co is een landelijk samenwerkingsverband van zorgvuldig geselecteerde boutique luxury makelaars. Samen vormen wij één netwerk, met één gedeeld aanbod. De woningen die u op onze website ziet, zijn afkomstig van alle aangesloten kantoren binnen Baerz & Co. Daardoor is niet ieder object rechtstreeks door ons kantoor in verkoop, maar door een gespecialiseerde collega binnen ons netwerk. Heeft u een woning gevonden die u aanspreekt en wilt u meer informatie? Dan brengen wij u graag persoonlijk in contact met de betreffende verkoopmakelaar, zodat u direct en zorgvuldig wordt begeleid.

'S-GRAVENHAGE
Willemstraat 51 - 2514 HK
Netherlands

€1,995,000
Living Area
277m2
Plot Size
247m2
Bedrooms
5

Description

Stylishly and meticulously renovated townhouse in the heart of The Hague

Situated on one of the most atmospheric and characterful streets in the centre of The Hague, this exceptionally attractive and generously proportioned townhouse is now available. Located within walking distance of Noordeinde, the Palace Garden, the Hofvijver and a wide range of shops, restaurants and cultural venues, this is a vibrant yet quiet and distinguished residential setting.

Behind the charming and impressive façade lies an exceptionally well-presented home in which classical grandeur and contemporary living comfort come together beautifully. The property has been renovated and finished over recent years with great care, taste and craftsmanship. Features such as high ceilings, rich wall finishes, ornamental details and an elegant appearance are harmoniously combined with modern amenities, high-quality materials and a contemporary finish.

The house offers approximately 277 sq m of living space and features a surprisingly spacious, bright and versatile layout. Large windows, attractive sightlines and carefully selected materials create a luxurious yet warm atmosphere throughout. In addition, the property is equipped with a heat pump, underfloor heating and an excellent energy label A+, contributing to a comfortable and energy-efficient indoor climate.

Particularly appealing is the combination of representative living areas, generous bedrooms, multiple bathrooms, several outdoor spaces and a fully self-contained top floor. As a result, this home is ideally suited to large families, dual occupancy, live-in family members, an au pair, guest accommodation or working from home.

Layout:

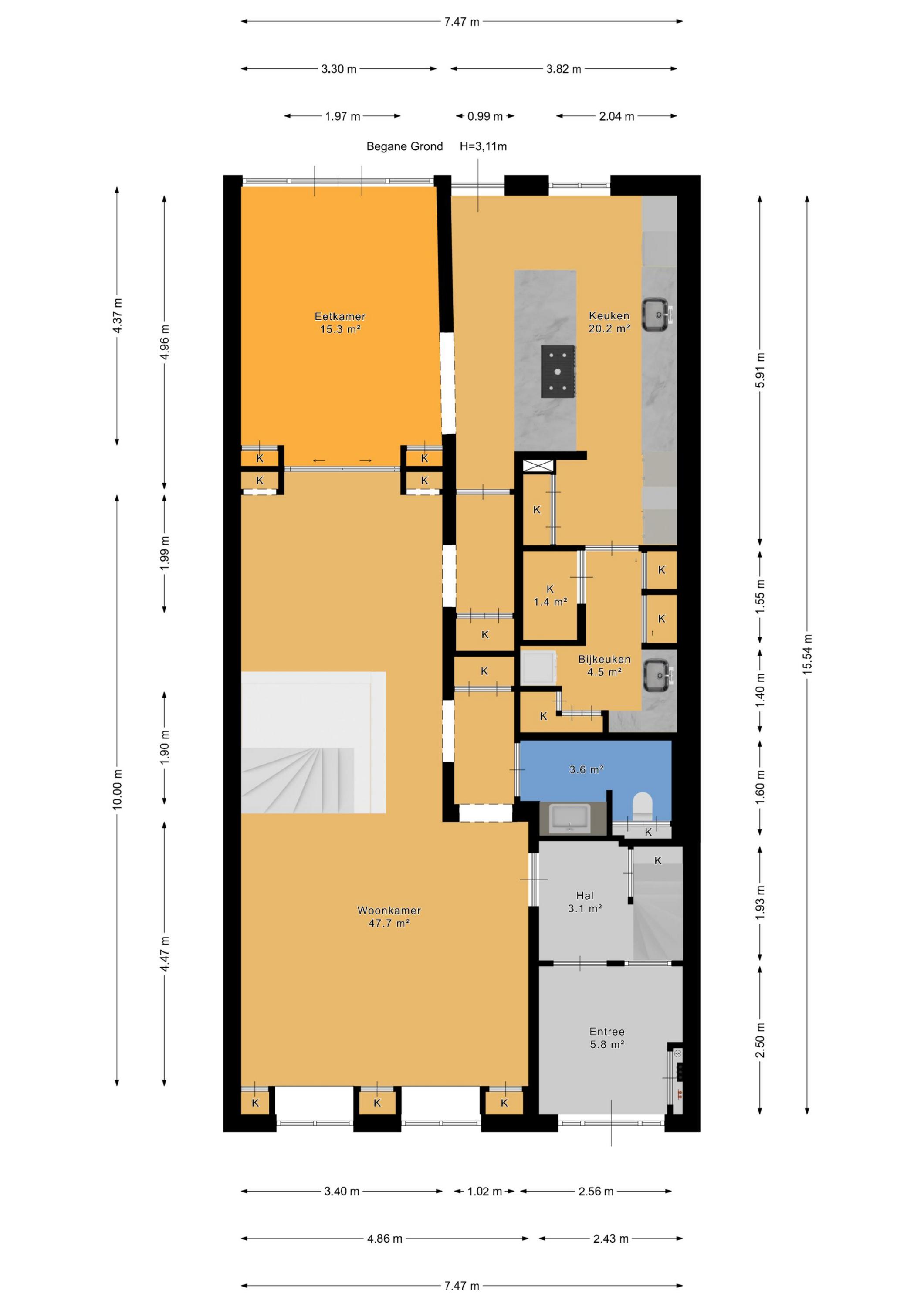
Ground floor:
The entrance hall provides access to the generous main living floor. At the front is the living room, featuring a spectacular staircase leading to the first floor, and a spacious bathroom. This is a stylish space with a beautiful finish, high ceilings and an elegant, luxurious feel.

At the rear is the separate dining room, which enjoys abundant natural light and connects directly to the garden through large French doors.

The luxurious kitchen truly forms the heart of the home and is fitted with a large island, high-end built-in appliances and ample storage space. Adjacent is a practical utility room.

From the dining room you access the beautifully landscaped deep rear garden, offering an attractive combination of terrace space, greenery, a covered seating area and a detached storage shed. A wonderful place to sit outside in peace, dine or entertain guests.

First floor:
The first floor is arranged as a comfortable bedroom level and comprises three spacious bedrooms, including a particularly attractive principal bedroom with direct access to a balcony and an adjoining walk-in wardrobe.

This floor also features two bathrooms, both modern and finished to a high standard. The main bathroom is generously sized and fitted with luxury sanitary ware and a sleek, stylish design. A second balcony is also located on this floor.

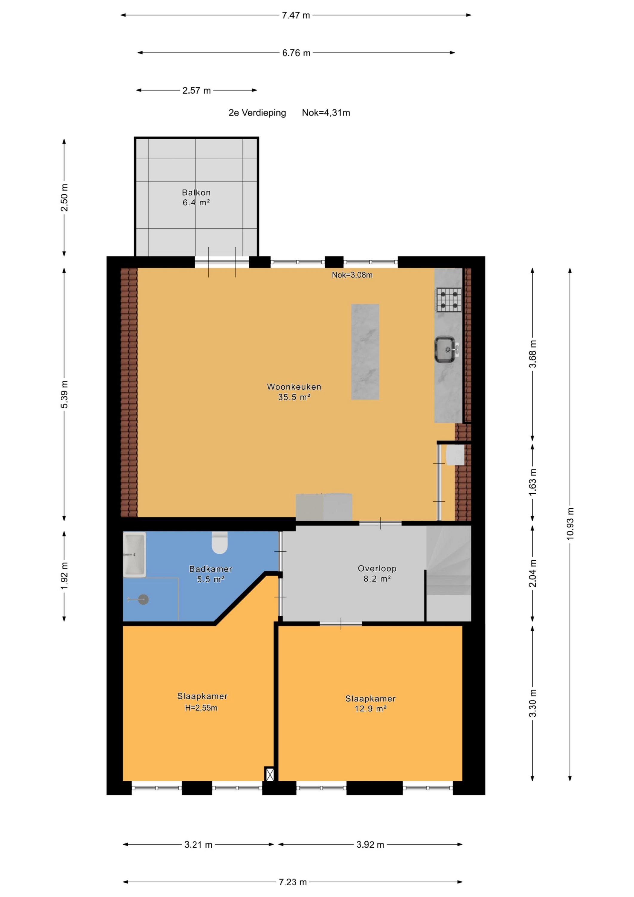
Second floor:
The second floor is arranged as a fully self-contained apartment, accessible via a separate staircase. It includes a spacious kitchen/living area, two bedrooms, a bathroom, a central landing and a private balcony.

The exposed roof structure and pleasant natural light give this level additional atmosphere and character. This floor is ideally suited for use as guest accommodation, an au pair suite, living space for family members or an independent work and guest area within the home.

Atmosphere and finish:
What makes this property especially appealing is the quality of its finish. A stylish and consistent design language has been applied throughout the house, including herringbone floors, rich wall panelling, bespoke cabinetry, luxurious sanitary fittings and a high-quality kitchen. The combination of classical details and contemporary design creates an exclusive yet warm living experience.

Particulars:
-Freehold property
-Energy label A+
-Living area of approximately 277 m2
-High-quality renovation and stylish finish
-Equipped with a heat pump and underfloor heating
-Deep rear garden with covered terrace and storage shed
-Five bedrooms spread over the upper floors
-Four bathrooms
-Second floor arranged as a self-contained apartment with separate access
-Excellent location in the centre of The Hague
-Available from August/September 2026

Features

Solar panels
Air conditioning
Transfer of ownership
Asking Price
€ 1.995.000
Status
beschikbaar
Acceptance
in overleg
Construction
Kind of house
Herenhuis
Building type
tussenwoning
Construction period
1903
Energy rating
A+
Bedrooms
5
Bathrooms
3
Surface Areas And Volume
Living Area
277 m2
Other indoor space
0 m2
Exterior space attached to the buildinge
18 m2
External storage space
7 m2
Volume in cubic meters
1062 m3
Plot Size
247 m2
Facilities
Tv kabel
Airconditioning
Zonnecollectoren
Zonnepanelen
Aan rustige weg
In woonwijk
Baerz & Co Property Brochure

Brochure

Videos

Floor Plans

Beeuwkes Makelaardij

Van Alkemadelaan 338
2597 AS Den Haag

info@beeuwkes.nl
+31 703143000

www.beeuwkes.nl

Information / Viewing request

Sjoerd Bouma profile image
Sjoerd Bouma
Real estate agent

Buying a Luxury Property in The Hague

The Hague offers a sophisticated community, global connectivity, and respected cultural institutions. Residents enjoy premium services, elegant surroundings, and seamless access to international amenities, all within a discreet and secure urban environment.