Baerz & Co is een landelijk samenwerkingsverband van zorgvuldig geselecteerde boutique luxury makelaars. Samen vormen wij één netwerk, met één gedeeld aanbod. De woningen die u op onze website ziet, zijn afkomstig van alle aangesloten kantoren binnen Baerz & Co. Daardoor is niet ieder object rechtstreeks door ons kantoor in verkoop, maar door een gespecialiseerde collega binnen ons netwerk. Heeft u een woning gevonden die u aanspreekt en wilt u meer informatie? Dan brengen wij u graag persoonlijk in contact met de betreffende verkoopmakelaar, zodat u direct en zorgvuldig wordt begeleid.

BREDA
Oude Liesboslaan 265 - 4839 AC
Netherlands

Lennart van Oosterhout profile image
Lennart van Oosterhout
Real Estate Agent
€1,575,000 k.k.
Living Area
182m2
Plot Size
9523m2
Bedrooms
4

Description

Modern villa in country house style, directly adjacent to the Liesbos forest, situated on a beautiful plot.

The property is in excellent condition and designed for optimal convenience, featuring a bedroom and bathroom on the ground floor, as well as three additional bedrooms and a bathroom upstairs. Behind the house is a large, beautiful barn with a double garage, and the plot also includes a double carport.

The spacious garden, with adjacent pastureland, offers complete privacy. Behind the house and next to the outbuilding, a stunning veranda has been created—an ideal spot to enjoy the magnificent garden.
GROUND FLOOR
ENTRANCE HALL
Entrance hall with wardrobe, utility closet (equipped with a modern fuse box with 8 circuits and an earth leakage switch), and access to the hallway.

HALLWAY
Hallway with staircase to the first floor and access to various rooms:

TOILET
Toilet room with wall-hung toilet with built-in cistern and a washbasin unit.

BATHROOM
Bathroom featuring a bathtub, shower cabin with thermostatic faucet, a washbasin unit with ample storage, and a designer radiator.

BEDROOM I
Spacious bedroom with views of the forest, the cozy patio, and beautiful views of the garden on both sides. A sliding door at the rear provides direct access to the garden. The floor is finished with attractive wooden planks.

LIVING ROOM
Located on the right side of the house, the living room overlooks the Liesbos forest. The sitting area is at the front, where a stylish gas fireplace has been installed.

DINING ROOM
The dining room is situated at the rear and offers views of the garden, surrounding terraces, and the pond beside the house. A double sliding door connects the room to the garden and terrace.

KITCHEN
Adjacent to the dining room, the kitchen features a modern design, including a composite countertop, induction hob, extractor hood, dishwasher, and plenty of storage in drawers and cabinets. The wall unit houses a large refrigerator, a combination convection/steam oven, and a convection oven/microwave combo. There is also ample additional cupboard space.

UTILITY ROOM
Utility room with a modern kitchenette including a sink. This room also contains the connections for laundry appliances, as well as a separate under-stairs storage area.

The hallway, front room, kitchen, and utility room are finished with large anthracite-colored tiled floors.
FIRST FLOOR
LANDING
Landing with a large roof window, providing access to:

BEDROOM II
Side bedroom with two Velux roof windows and two built-in wardrobes. This room also provides access to a storage space housing the high-efficiency central heating boiler (circa 2018) and mechanical ventilation unit.

BATHROOM
Bathroom equipped with a shower cabin with thermostatic faucet, a washbasin, and a wall-hung toilet with a built-in cistern. Daylight enters through a Velux roof window.

BEDROOM III
Front bedroom with a so-called French balcony.

BEDROOM IV
Large rear bedroom with storage space on both sides behind the knee walls.

All bedrooms feature light-colored laminate flooring.
GARDEN
The beautiful, fully enclosed garden surrounds the home, offering maximum privacy and blending seamlessly into the natural surroundings. Several terraces have been laid out around the house with clean-lined concrete tiles. A veranda is situated between the house and the outbuilding and continues alongside and behind the outbuilding, offering wonderful views of the garden. Part of the veranda is equipped with patio heating. The garden includes a large lawn, a fruit orchard, and various trees and hedges. A lovely pond is located next to the house. The driveway, finished with decorative paving, leads to both the carport (space for two vehicles) and the large barn.

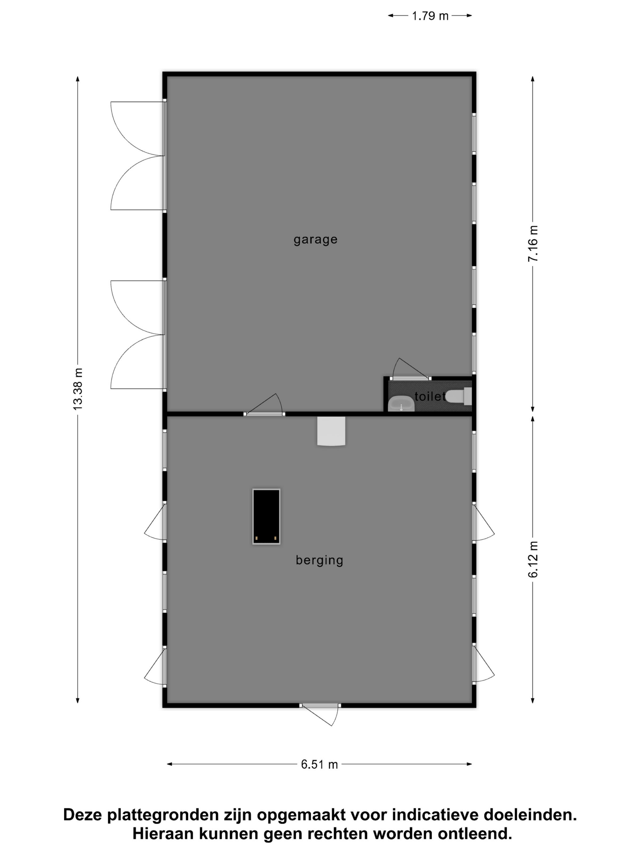
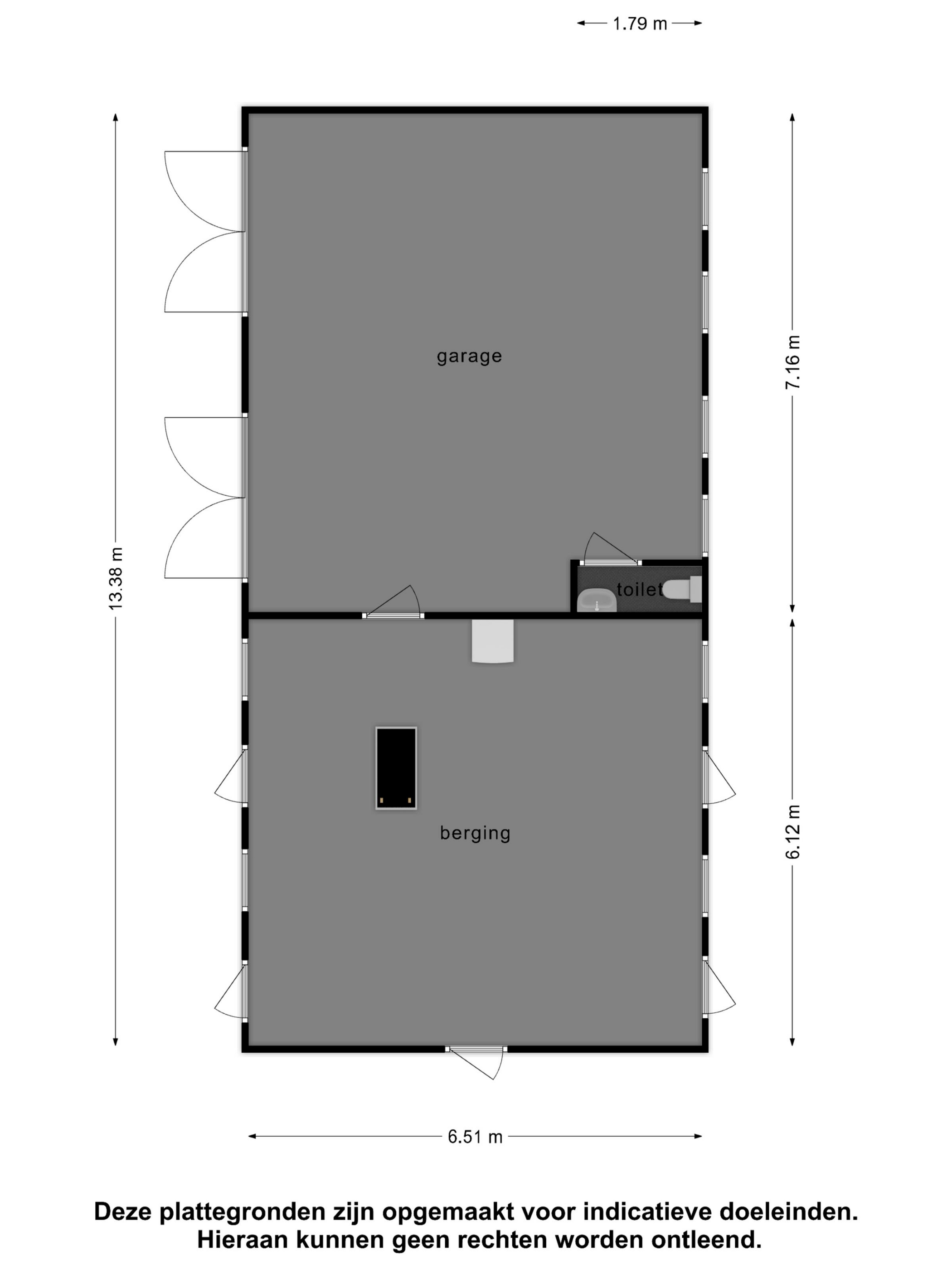
OUTBUILDING
The outbuilding is divided into two sections. The right-hand side is a multifunctional storage/hobby space with a full-sized attic above. The left-hand side, currently used as a hobby area, provides ample space for two vehicles.

This outbuilding is equipped with three-phase power.
ADDITIONAL INFORMATION
The ground floor features underfloor heating beneath the tiled flooring.

The ground floor is finished with smooth plasterwork.

The entire house is fully insulated.

Ideally located on the edge of Liesbos forest, just minutes by bike from the Haagsemarkt and around 15 minutes from Breda’s city center.

Several major roads are easily accessible from the area.

The house is in excellent condition.

The generous space in both the house and outbuilding makes this property suitable for a wide range of lifestyles and purposes.

Features

Transfer of ownership
Asking Price
€ 1.575.000 k.k.
Status
beschikbaar
Acceptance
in overleg
Construction
Kind of house
Villa
Building type
vrijstaande woning
Construction period
2000
Energy rating
B
Roof type
samengesteld dak
Bedrooms
4
Bathrooms
2
Surface Areas And Volume
Living Area
182 m2
Other indoor space
0 m2
Exterior space attached to the buildinge
86 m2
External storage space
141 m2
Volume in cubic meters
674 m3
Plot Size
9523 m2
Facilities
Mechanische ventilatie
Tv kabel
Aan bosrand
Aan rustige weg
Vrij uitzicht
Open ligging
In bosrijke omgeving
Baerz & Co Property Brochure

Brochure

Videos

Floor Plans

Storimans en Partners

Ginnekenweg 161
4818 JD Breda

lvanoosterhout@storimansenpartners.nl
+31 76 522 60 90

www.storimansenpartners.nl

Information / Viewing request

Lennart van Oosterhout profile image
Lennart van Oosterhout
Real Estate Agent

Buying a Luxury Property in Breda

Breda attracts a discerning international community with its elegant residences, sophisticated lifestyle, and attentive property services. The city’s blend of rich heritage and modern amenities ensures lasting appeal for those seeking refined living in a vibrant Dutch setting.