Baerz & Co is een landelijk samenwerkingsverband van zorgvuldig geselecteerde boutique luxury makelaars. Samen vormen wij één netwerk, met één gedeeld aanbod. De woningen die u op onze website ziet, zijn afkomstig van alle aangesloten kantoren binnen Baerz & Co. Daardoor is niet ieder object rechtstreeks door ons kantoor in verkoop, maar door een gespecialiseerde collega binnen ons netwerk. Heeft u een woning gevonden die u aanspreekt en wilt u meer informatie? Dan brengen wij u graag persoonlijk in contact met de betreffende verkoopmakelaar, zodat u direct en zorgvuldig wordt begeleid.

GALDER
Galderseweg 85 - 4855 AG
Netherlands

Lennart van Oosterhout profile image
Lennart van Oosterhout
Real Estate Agent
€1,950,000 k.k.
Living Area
310m2
Plot Size
25110m2
Bedrooms
5

Description

Detached Villa on 25,110 m² – with Annex, 2 B&B Studios, and Ultimate Privacy Next to Nature Reserve near Breda

In a unique location on the southern side of Breda, in the village of Galder and bordering the Markdal nature reserve, lies this luxurious detached villa with a multifunctional annex. The entire property sits on an exceptionally generous plot of no less than 25,110 m², spread over five parcels. Here, you live surrounded by greenery, with complete privacy and expansive views over your own lands and the surrounding meadows.

The main residence is very well maintained and features a spacious living room, a charming kitchen-diner, and three full-sized bedrooms. Large windows provide plenty of light and offer stunning views of the garden and the surrounding landscape.

The detached annex offers exceptional possibilities. At the rear, two fully self-contained residential units have been created, each with its own kitchen, bathroom, and bedroom. Ideal as guesthouses, for informal care, or dual occupancy. These two guesthouses are currently operating as successful B&Bs (De Veldenhof I & II), including all required permits and zoning. Additionally, there is ample space for a home office, practice, studio, or other creative purposes. The private nature area behind the guesthouses offers ultimate privacy.

This property is perfect for those seeking spacious living in a green environment, with peace, nature, and plenty of space – yet still close to the city of Breda.

GROUND FLOOR

ENTRANCE
The entrance is located at the rear, next to the carport. From this (front) door you access:

HALLWAY
Hallway with a (cloakroom) cupboard and access to:

TOILET
Toilet with wall-mounted toilet, built-in reservoir, and hand basin.

UTILITY ROOM
Utility room with a large wall unit. This room also includes the connections for laundry appliances and a utility sink.

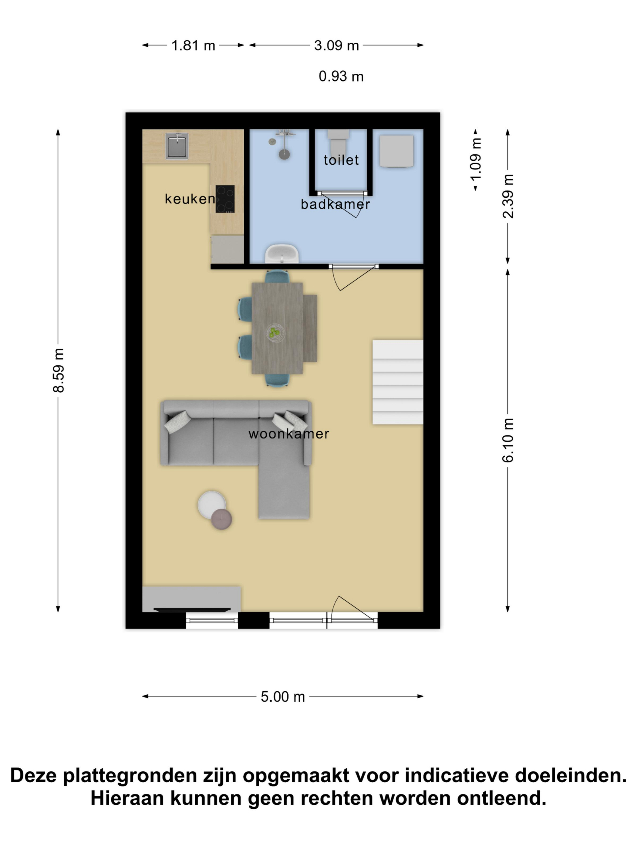
KITCHEN-DINER
The beautiful kitchen-diner (approx. 51 m²) forms the heart of the home. This light and very spacious kitchen is equipped with a modern and luxurious design, including a concrete countertop, a wide gas stove (Lacanche) with multiple ovens, an extractor hood, and ample storage space. There is also a kitchen island (also with concrete top) with sink, designer faucet, dishwasher, and additional cupboard space.

On the garden side, there are two sets of double garden doors and a large glass facade, offering beautiful views of the garden and the meadow/nature reserve beyond. A modern gas fireplace is built into the wall between the kitchen and garden.

The high exposed roof structure adds to the sense of space.

Staircase to the first floor and access to:

LIVING ROOM
Spacious L-shaped living room (approx. 47 m²) with modern mantel and insert fireplace. The living room features oak flooring.

French doors provide access to the veranda. From here too – where an outdoor fireplace is located – you can enjoy stunning views of the garden and surrounding landscape.

From the kitchen-diner, access to:

BEDROOM I
Master bedroom (approx. 4.55 x 3.00 m) with large wardrobe. This room also contains the meter cupboard (8 circuits + 3-phase power + earth leakage switch). The floor is fitted with stylish dark laminate.

BATHROOM
Bathroom (approx. 4.40 x 2.45 m) located at the front of the house. This bathroom includes a wide vanity with two countertop basins, a designer bathtub, and a walk-in shower with thermostatic mixer and rain/hand shower.

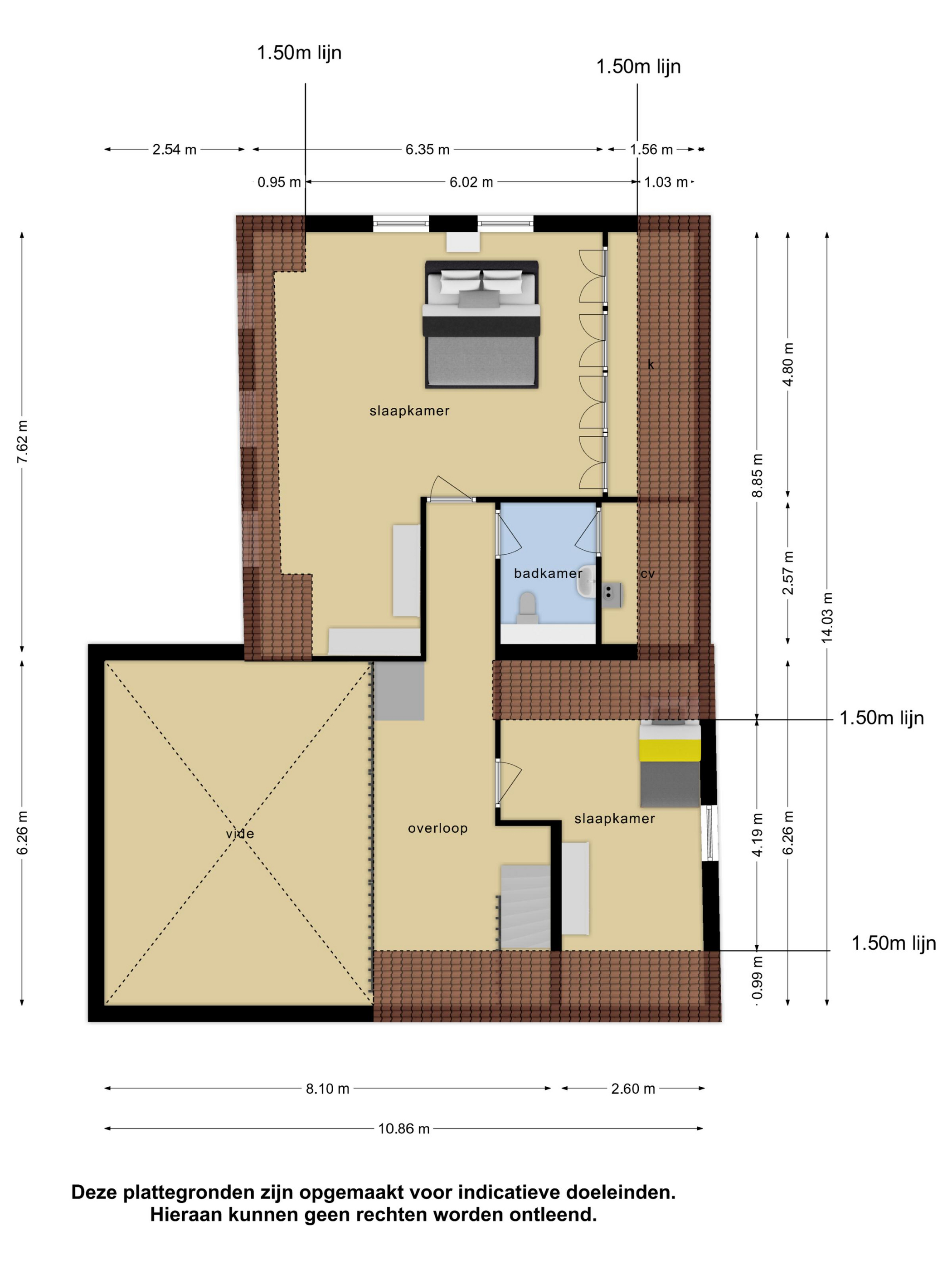
FIRST FLOOR

LANDING
Landing/mezzanine, overlooking the kitchen-diner and providing access to:

BEDROOM II
Front bedroom (approx. 6.25 x 2.60/3.50 m), with partially exposed roof beams.

TOILET
Toilet with wall-mounted toilet, built-in reservoir, and hand basin.

BOILER ROOM
Boiler room with central heating combi boiler (Vaillant, Ecotec Plus, 2024).

BEDROOM III
Large bedroom (approx. 7.60/4.80 x 6.35 m) with a very wide dormer window at the rear and a large wardrobe at the front. The ceiling features recessed lighting.

The first floor is entirely fitted with an attractive dark laminate floor.

ANNEX (2022)

Large garage/workspace, suitable as a hobby room, home office, garage, etc. Accessible via a large, electrically operated sectional door.

Separate, large technical room with meter cabinet (22 circuits + earth leakage switch). This space houses the combi boiler (Vaillant, 2022) and the computer system for the irrigation system.

The entire building has underfloor heating and is prepped for a toilet and kitchen/bathroom facilities.

A fully openable glass folding wall creates a seamless connection to the garden.

Above this space is a large storage loft. The annex is approx. 200 m² in total.

STUDIO I AND STUDIO II

Studio I and II have identical layouts and finishes:

LIVING ROOM / KITCHEN-DINER
Living room (approx. 35 m²) with garden views, open-plan kitchen with modern fittings: synthetic countertop with stainless steel sink, induction hob, combination oven, fridge with freezer compartment, dishwasher, and various upper/lower cabinets.

FIRST FLOOR

SLEEPING AREA
Sleeping area (approx. 2.40 x 3.15 m) with air conditioning.

BATHROOM
Bathroom (approx. 2.40 x 3.15 m) with walk-in shower with thermostatic controls, vanity unit, and toilet. This space also contains the connections for laundry appliances.

The studios are finished to a high standard; all ceilings have recessed lighting, the walls are plastered, beautifully finished woodwork throughout, and they are fully fitted with aluminum frames with triple glazing.

GARDEN

The garden offers maximum privacy and is beautifully landscaped, featuring a large lawn, ornamental grass borders, small trees, and shrubs. At the rear, the garden is bordered by a low beech hedge, preserving the view of the landscape beyond.

On the side of the house is a covered storage area for bikes, garden tools, etc.

The veranda and terrace are finished with large concrete tiles. The driveway is located on the side and provides access to the premises with parking for multiple cars and access to the garage. A carport for two cars is attached to the house.

On the side of the plot are five 60-year-old low-stem Conference pear trees.

ADDITIONAL INFORMATION
Main House
Year built: 1936
(Renovated in 2009 and 2010)
Insulation: Fully double-glazed, roof insulation, floor insulation, and wall insulation
Heating: 2024 combi boiler
Underfloor heating beneath the tiled floors
Enerey label: B
Annex
Year built: 2022
Fully insulated
Heating: 2022 combi boiler
Fully fitted with underfloor heating
Energy label: A+
Living areas
Main residence: 224 m²
Studio I: 43 m²
Studio II: 43 m²

Features

Air conditioning
Transfer of ownership
Asking Price
€ 1.950.000 k.k.
Status
beschikbaar
Acceptance
in overleg
Construction
Kind of house
Villa
Building type
vrijstaande woning
Construction period
1936
Energy rating
B
Roof type
zadeldak
Bedrooms
5
Bathrooms
3
Surface Areas And Volume
Living Area
310 m2
Other indoor space
0 m2
Exterior space attached to the buildinge
53 m2
External storage space
100 m2
Volume in cubic meters
931 m3
Plot Size
25110 m2
Facilities
Tv kabel
Airconditioning
Aan rustige weg
Vrij uitzicht
Buiten bebouwde kom
Landelijk gelegen
Baerz & Co Property Brochure

Brochure

Videos

Storimans en Partners

Ginnekenweg 161
4818 JD Breda

lvanoosterhout@storimansenpartners.nl
+31 76 522 60 90

www.storimansenpartners.nl

Information / Viewing request

Lennart van Oosterhout profile image
Lennart van Oosterhout
Real Estate Agent

Buying a Luxury Property in Galder

Galder offers privacy, thoughtful design, and a harmonious lifestyle in one of the Netherlands’ most esteemed rural enclaves. Its community, coupled with professional services, attracts global residents seeking refined living and lasting value.