Baerz & Co is een landelijk samenwerkingsverband van zorgvuldig geselecteerde boutique luxury makelaars. Samen vormen wij één netwerk, met één gedeeld aanbod. De woningen die u op onze website ziet, zijn afkomstig van alle aangesloten kantoren binnen Baerz & Co. Daardoor is niet ieder object rechtstreeks door ons kantoor in verkoop, maar door een gespecialiseerde collega binnen ons netwerk. Heeft u een woning gevonden die u aanspreekt en wilt u meer informatie? Dan brengen wij u graag persoonlijk in contact met de betreffende verkoopmakelaar, zodat u direct en zorgvuldig wordt begeleid.

HURWENEN
Dorpsstraat 20 - 5327 AS
Netherlands

€899,000
Living Area
148m2
Plot Size
580m2
Bedrooms
2

Description

Situated in a sought-after location in the picturesque village of Hurwenen, near the nature reserve De Hurnse Kil, this luxurious, fully renovated character home is set within a beautifully landscaped west-facing garden designed by an architect, complete with an insulated outbuilding and veranda.

Entrance hall with staircase, bright living room with bay windows, garden-oriented luxury kitchen, utility room, cellar and toilet on the ground floor.
Two bedrooms, one with a walk-in closet, a luxury bathroom and a separate toilet on the first floor.

Gross volume: 575 m³
Living area: 148 m²
Plot size: 580 m²
Year of construction: 1941
Energy label: A+++

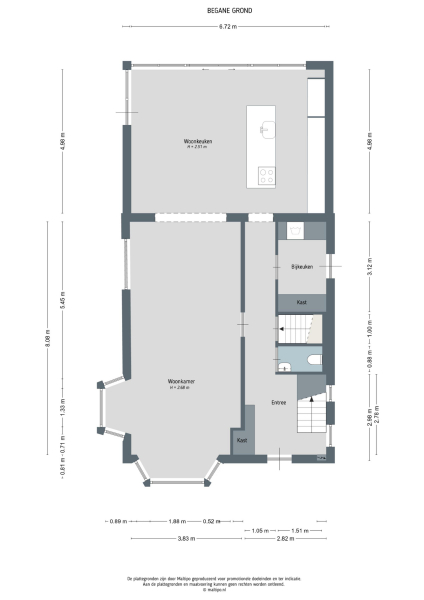
Ground floor layout:
Upon entering, it immediately becomes clear how carefully this home has been renovated, preserving its charm and character. The hall provides a calm entrance with staircase, toilet and access to the cellar. From here, the utility room is also accessible, practically fitted with built-in cupboards, connections for laundry appliances and a door to the driveway.
A steel pivot door leads into the living room at the front. Here, character and comfort come together naturally. The bay windows, stained glass details and herringbone parquet flooring give the space a warm and inviting atmosphere that perfectly complements the home’s overall appearance.
At the rear, a full-width modern extension has been realised, creating a spacious kitchen where indoor and outdoor living blend seamlessly. Large sliding doors provide direct access to the architect-designed garden.
The kitchen features a central island with a composite worktop and a wall unit in a warm oak-look finish.
The cabinetry is partly integrated into the wall and fitted with high-quality built-in appliances, creating a calm and cohesive look. The coffee corner is a thoughtful and practical feature. There is ample workspace and storage, as well as plenty of room for a generous dining table.
The ground floor feels like one cohesive living space, where the different areas flow naturally into one another — a place where daily life unfolds effortlessly, with attention to detail and a strong sense of proportion.

First floor layout:
The original staircase leads to the first floor, where the sense of space is immediately apparent.
The landing benefits from abundant natural light through roof windows in the insulated roof and offers space for a workspace. The open void enhances the feeling of height and connection within the home.
There is also a separate toilet on the landing, designed as a luxury toilet with integrated bidet and drying function (Geberit Aquaclean Mera system).
At the rear is the main bedroom, a calm and light-filled space with unobstructed views over the surrounding fields and the dike. Adjacent is the walk-in closet, fitted with custom cabinetry. From here, a black steel door leads into the bathroom. In addition, the bedroom provides access to the sedum-covered flat roof of the kitchen extension, where a terrace has been created — a sheltered spot with open views over the greenery.
The bathroom is also accessible from the landing and is finished in a timeless style with large wall and floor tiles and refined sanitary fittings. It features a freestanding bathtub, a walk-in shower with rain shower and a double vanity unit.
At the front of the house is a second bedroom, also well-proportioned and overlooking the Dorpsstraat.
This floor is also equipped with underfloor heating.

Highlights:
In 2022, the property was extended, fully renovated and made sustainable to a high standard. No compromises were made in terms of quality or comfort, while original features have been carefully preserved. The result is a home where modern living comfort and the character of the original building period come together naturally, with an energy performance close to zero-energy.
The house benefits from high-quality insulation (floors, walls, roof and glazing) and a future-proof installation system, including a ground-source heat pump, underfloor heating and balanced ventilation with heat recovery. This ensures a comfortable and energy-efficient indoor climate.
The architect-designed garden is west-facing, enjoying sunlight from early morning until late evening. It has been thoughtfully laid out with multiple terraces, planted borders and a pleasant balance between openness and privacy. Directly adjacent to the house is a sunny terrace, while further into the garden several areas have been created to enjoy sun or shade at any time of day.
Next to the house is the outbuilding, which extends along the length of the garden and forms a natural part of the overall layout. On the garden side, it features a veranda currently arranged as a comfortable lounge area.
This setup creates a well-balanced plot, with sheltered areas near the house and open views towards the surrounding countryside.
The outbuilding is fully insulated and equipped with underfloor heating and a hot water connection. Currently used as a garage, it also offers potential as a workspace, studio or hobby room.
This character home from 1941 is located in a pleasant setting on Dorpsstraat in Hurwenen, a short distance from the Waaldijk and the De Hurnse Kil nature reserve — an area ideal for walking, cycling and enjoying the outdoors. Daily amenities are available in the nearby village of Rossum, while Zaltbommel, with its wide range of shops, restaurants and train station, is easily accessible. Thanks to its convenient location, the A2 motorway can be reached within ten minutes, providing quick connections to Den Bosch, Eindhoven and Utrecht.

The property offers a well-balanced combination of luxury, comfort, sustainability and character, in a location where peace, space and accessibility come together naturally.

Features

Solar panels
Transfer of ownership
Asking Price
€ 899.000
Status
beschikbaar
Acceptance
in overleg
Construction
Kind of house
Eengezinswoning
Building type
vrijstaande woning
Energy rating
A+++
Roof type
zadeldak
Bedrooms
2
Bathrooms
1
Surface Areas And Volume
Living Area
148 m2
Other indoor space
10 m2
External storage space
22 m2
Volume in cubic meters
575 m3
Plot Size
580 m2
Facilities
Buitenzonwering
Schuifpui
Dakraam
Glasvezel kabel
Domotica
Zonnepanelen
Balansventilatie
Aan rustige weg
Vrij uitzicht
Landelijk gelegen
Baerz & Co Property Brochure

Brochure

Videos

Video Dorpsstraat 20

Floor Plans

Bijzonder Wonen Makelaardij

Heilige Geeststraat, 11
5301CP Zaltbommel

info@bijzonderwonen.com
+31 41 868 00 50

www.bijzonderwonen.com

Information / Viewing request

Jeanette van Haaften profile image
Jeanette van Haaften
Real Estate Agent

Buying a Luxury Property in Hurwenen

Hurwenen seamlessly blends refined countryside living with modern amenities. The community values privacy, culture, and local connection, supported by exclusive services and a setting that attracts an international, discerning clientele.