Baerz & Co is een landelijk samenwerkingsverband van zorgvuldig geselecteerde boutique luxury makelaars. Samen vormen wij één netwerk, met één gedeeld aanbod. De woningen die u op onze website ziet, zijn afkomstig van alle aangesloten kantoren binnen Baerz & Co. Daardoor is niet ieder object rechtstreeks door ons kantoor in verkoop, maar door een gespecialiseerde collega binnen ons netwerk. Heeft u een woning gevonden die u aanspreekt en wilt u meer informatie? Dan brengen wij u graag persoonlijk in contact met de betreffende verkoopmakelaar, zodat u direct en zorgvuldig wordt begeleid.

UITHOORN
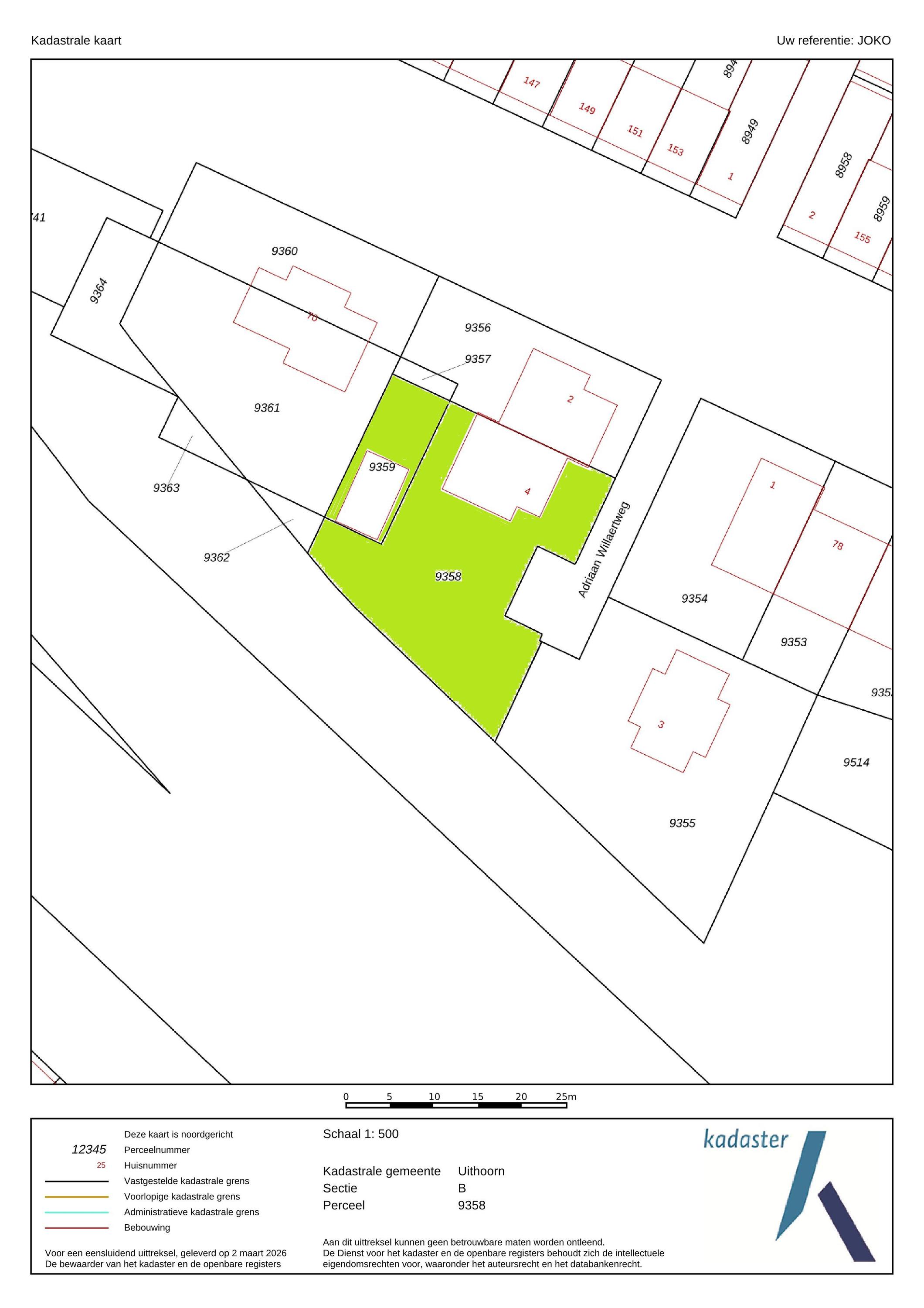
Adriaan Willaertweg 4 - 1421 KW
Netherlands

€1,220,000
Living Area
231m2
Plot Size
746m2
Bedrooms
4

Description

Welcome to this unique semi-detached townhouse, set on a generous plot of no less than 746 m² in the highly sought-after Burgemeester Kootpark neighborhood. This popular area is renowned for its characteristic architecture, green layout, and central location – the perfect combination of peace, space, and accessibility. It’s a favorite spot for young families and anyone looking to live comfortably and generously in a safe, child-friendly environment. The home is surrounded by a beautifully landscaped garden where you can enjoy outdoor living all year round. With a charming garden house and a spacious covered area, it’s easy to create a spot for relaxing, socializing, or dining with friends and family. Parking is convenient on your own property, accommodating up to three cars.

The neighborhood is traffic-calmed, green, and safe, with plenty of play areas for children nearby. Primary and secondary schools are within walking distance, as are various supermarkets and the De Waterlinie health center. Accessibility is also excellent: shops, public transport, and main roads are all close by. The charming village center with Amstel terraces is within easy reach, as are shopping areas such as Zuidelwaardplein and Amstelplein, just a short bike ride away. With the Amstelveenlijn, you can reach Amstelveen or the vibrant center of Amsterdam in no time.

In short: here you live with comfort, space, and luxury in a prime location.

Layout of this stunning home:

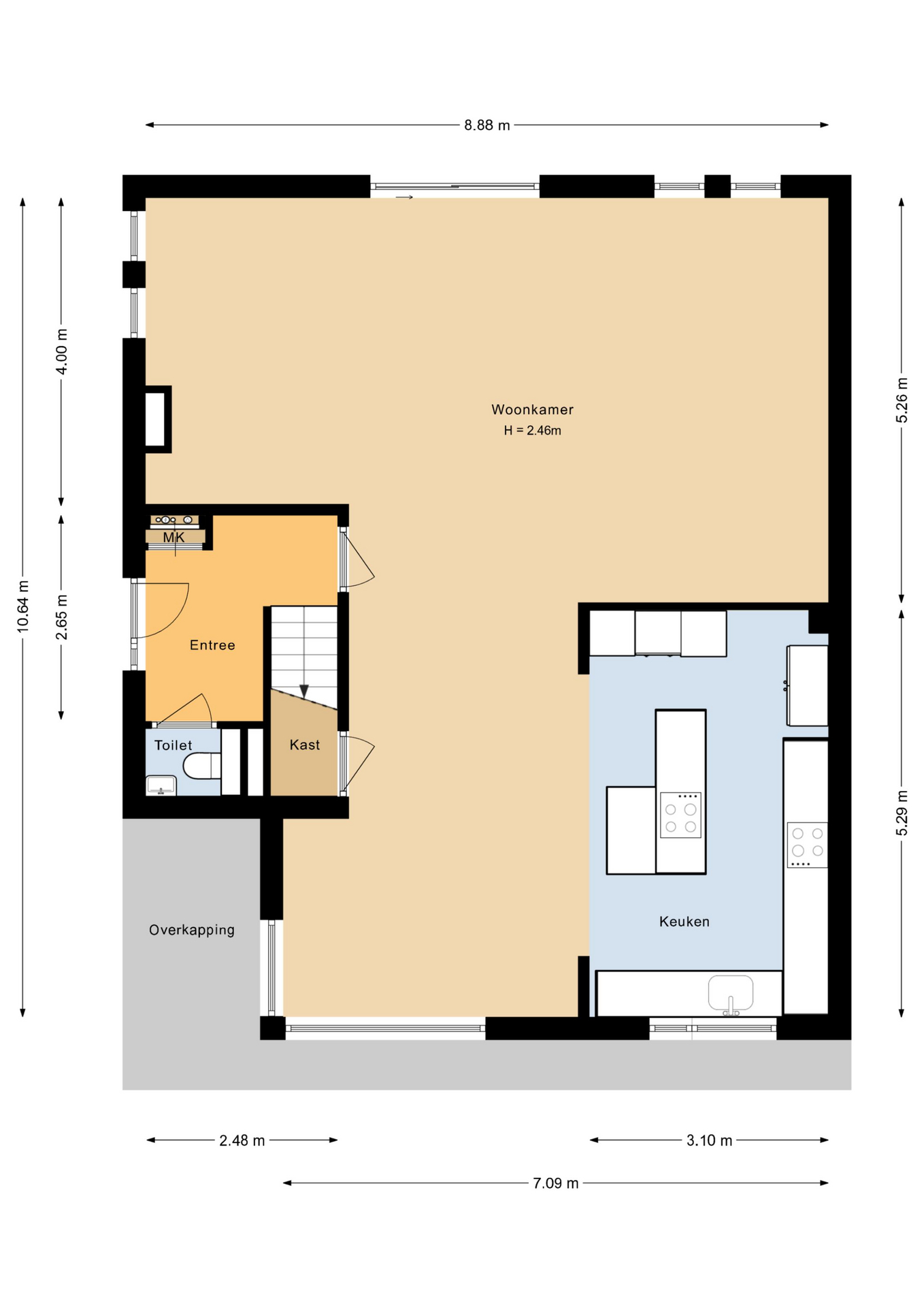
GROUND FLOOR
Via the beautifully paved front garden, with a path leading to the side of the house flanked by stately plane trees, you reach the front door. The representative, spacious hall immediately conveys a well-finished impression and provides access to the modern toilet with a sink, the meter cupboard, and the fixed staircase to the first floor. A stylish closed door leads to the impressive living space, where the living room and open-plan kitchen flow seamlessly into each other.

The kitchen at the front is bright and spacious, with large windows and a corner window at the dining area fitted with charming shutters – an ideal spot for cozy meals. The country-style kitchen features a central island with an induction hob and practical drawers on both sides, complemented by an elegant wine rack. The L-shaped countertop provides ample space and is equipped with luxury built-in appliances, including a grill plate, fryer with extractor hood, and built-in food processor. At the window side, there is the sink area with a double sink, Quooker, and dishwasher. A large cabinet wall with a combination microwave, additional oven on the other side of the kitchen, and space for a large double fridge/freezer with ice machine (available for takeover) completes the setup. Under the stairs, there is also a convenient cupboard for coats and extra storage.

The L-shaped living room at the rear, with a generous seating area, offers beautiful views of the garden and a wide sliding door to the outside. The spacious seating area and a cozy reading corner with a wood-burning stove make it a place to completely unwind. The large side window overlooks the side garden, while shutters, sunscreens, and air conditioning ensure comfort in every season. The entire ground floor is finished with a warm, luxurious wooden floor.

FIRST FLOOR
The spacious first-floor hall provides access to three large bedrooms, the stylish bathroom, and the practical laundry room. The spacious L-shaped master bedroom at the front features two large windows and a side window with garden views. The adjacent bathroom is equipped with a generous bathtub, modern shower, illuminated sink, toilet, and bidet – a space that perfectly combines luxury and functionality.

At the rear are two good-sized bedrooms with access to a large tiled terrace that spans the full width of the house, offering stunning views of the backyard. Sunscreens and air conditioning in one of the rooms add extra comfort. The hall and bedrooms are finished with stylish laminate, while the bathroom and laundry room are fully tiled.

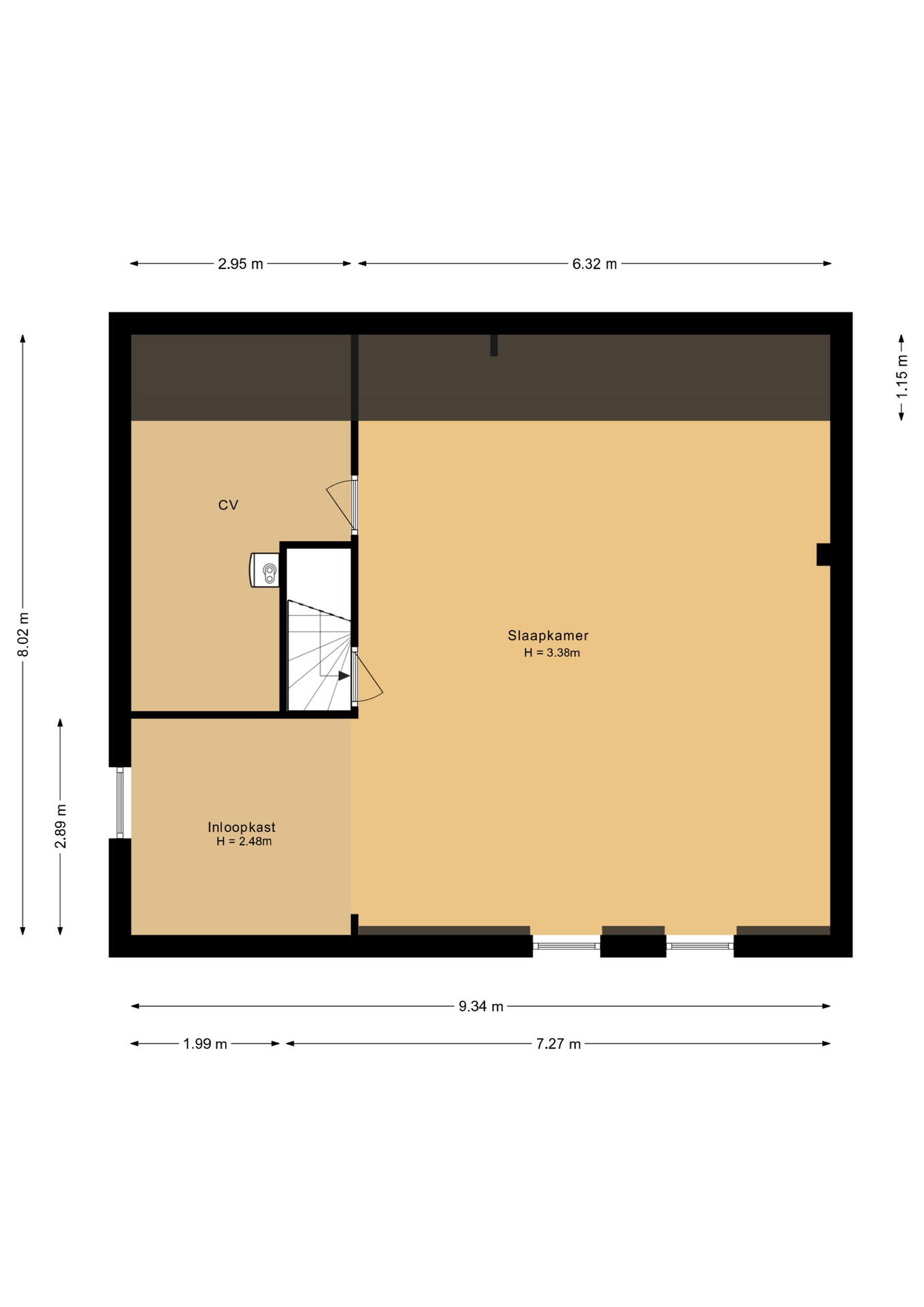
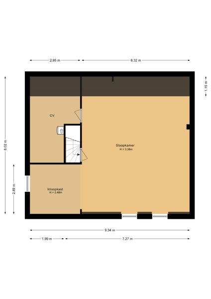
SECOND FLOOR
Via an open staircase, you reach the second floor, where the master suite is a true showstopper. This spacious room offers plenty of options for a luxurious and practical layout. The room features an open walk-in closet with a window overlooking the side garden, and a built-in wardrobe – both from the Italian brand Poliform – ensuring stylish and efficient storage. Two front windows and the side window provide ample natural light and are fitted with sunscreens. Laminate flooring and air conditioning complete the space. Due to its generous size, this floor also offers potential to add two attic rooms. Additionally, there is a spacious storage room with central heating and mechanical ventilation unit, ideal for extra storage and practical facilities.

GARDEN
The beautiful garden is a true outdoor paradise, directly accessible via the sliding doors in the living room and via the side of the house through a charming open gate. The garden offers plenty of privacy and enjoys sunlight throughout the day, perfect for enjoying the outdoors. At the rear, there is a spacious terrace with a cozy seating area, complete with an awning spanning the full width of the house, ideal for both sun and shade. At the back of the garden stands a charming garden house with a covered area, perfect for a dining area with barbecue. The garden house features a neat wooden floor, electricity, and water, making it perfect as a workspace, hobby room, or for storage. Adjacent to the covered area is an additional terrace with seating, sheltered by a natural canopy of four beautiful plane trees, creating an idyllic spot to relax or entertain guests.

The garden continues into a generous side garden, with a compact garden house at the far end, ideal for tools, bikes, or extra storage, also equipped with electricity. A beautiful lawn runs throughout the garden, interspersed with perennial plants, stately plane trees, and ambient garden lighting. A playful gravel path connects the various terraces and the side entrance, where a water connection for a garden hose is available. The front garden is fully paved and offers space for three cars, including an electric charging point, combining comfort and functionality perfectly. This garden blends elegance, practical use, and ample opportunities to enjoy outdoor living at any time of the day.

SURROUNDINGS
Uithoorn is a modern and active municipality with approximately 29,250 inhabitants. The oldest part of Uithoorn is located directly on the river Amstel, and the harbor accommodates both large and small boats. There are ample shops, restaurants, and schools.

Accessibility: Located south of Amstelveen, Uithoorn offers excellent connectivity. It is approximately 20 minutes from Amsterdam and 30 minutes from Utrecht.

Interested in this home? Engage your own NVM buyer’s agent today. Your NVM buyer’s agent looks after your interests, saving you time, money, and hassle. Addresses of fellow NVM buyer’s agents in Utrecht can be found on Funda.

Features

Air conditioning
Transfer of ownership
Asking Price
€ 1.220.000
Status
beschikbaar
Acceptance
in overleg
Construction
Kind of house
Herenhuis
Building type
twee onder een kapwoning
Construction period
2002
Energy rating
A
Roof type
mansarde dak
Bedrooms
4
Bathrooms
1
Surface Areas And Volume
Living Area
231 m2
Other indoor space
0 m2
Exterior space attached to the buildinge
18 m2
External storage space
15 m2
Volume in cubic meters
763 m3
Plot Size
746 m2
Facilities
Mechanische ventilatie
Tv kabel
Buitenzonwering
Airconditioning
Rookkanaal
Schuifpui
Glasvezel kabel
Natuurlijke ventilatie
Aan rustige weg
In woonwijk
Beschutte ligging
Baerz & Co Property Brochure

Brochure

Floor Plans

Korver makelaars

Stationsweg 12
3641RG Mijdrecht

welkom@korvermakelaars.nl
+31 297 25 04 21

www.korvermakelaars.nl

Information / Viewing request

John Korver profile image
John Korver
Real estate agent

Buying a Luxury Property in Uithoorn

Uithoorn offers a refined community, tranquil scenery, and expert property advisory services. Its attractive lifestyle, investment prospects, and discreet international appeal resonate with sophisticated residents and investors alike.