At the edge of charming Wilnis, surrounded by the vast and green landscape of the Groene Hart, you will find this detached villa in a location where peace, space, and privacy come naturally.
Here, you live embraced by nature—with uninterrupted views and a sense of freedom you will experience every single day—while cities such as Amsterdam, Utrecht, Amstelveen, Haarlem, and Hilversum remain within comfortable reach. All daily amenities, including primary schools, sports clubs, shops, and public transport, are close at hand.
Since 2019, the villa has been completely renovated with great care and high-quality materials. No expense has been spared to create a perfect balance between modern living comfort and a warm, inviting atmosphere. Sustainability has also been taken into account, with features such as a water softener and 26 solar panels. Parking is easily available on your own private grounds.
GROUND FLOOR
Upon entering, you are immediately welcomed by a spacious entrance hall that offers a pleasant and open reception. From this representative hall, you have access to the toilet, the modernized meter cupboard with a three-phase connection, a multifunctional room, and the wonderfully bright living room with open-plan kitchen.
The L-shaped living room is located at the rear of the house and serves as a delightful space to gather. Large windows and sliding doors provide an abundance of natural light and create a seamless connection to the garden. The unobstructed views over the greenery ensure that every season has its own charm.
The ceramic flooring with underfloor heating (throughout the entire ground floor), subtly integrated spot lighting, and neatly concealed cabling all contribute to the calm and modern appearance.
At the front of the house, you will find the impressive open kitchen (installed in 2019), which can truly be described as spacious. The large kitchen island forms the central hub—perfect for cooking together or enjoying casual dining. On both sides, stylish cabinet walls house a full range of built-in appliances, including a combination oven, steam oven, refrigerator, freezer, dishwasher, induction hob, ceiling extractor, Quooker, and two wine climate cabinets.
The entire home is equipped with LED spot lighting with touch dimmers, allowing for flexible and atmospheric lighting throughout.
From the central hall, you also reach the multifunctional room, formerly the garage. This space is now fully integrated into the home and offers numerous possibilities, such as a home office, practice space, or additional living area. Here you will also find a modern bathroom (2022), equipped with double rain showers, a washbasin, toilet, and designer electric towel radiators. This makes having a bedroom on the ground floor entirely feasible.
A separate laundry room with space for a washing machine and dryer, a small kitchenette, and a neatly concealed central heating system (2020) complete the ground floor. From this utility room, you have direct access to the garden.
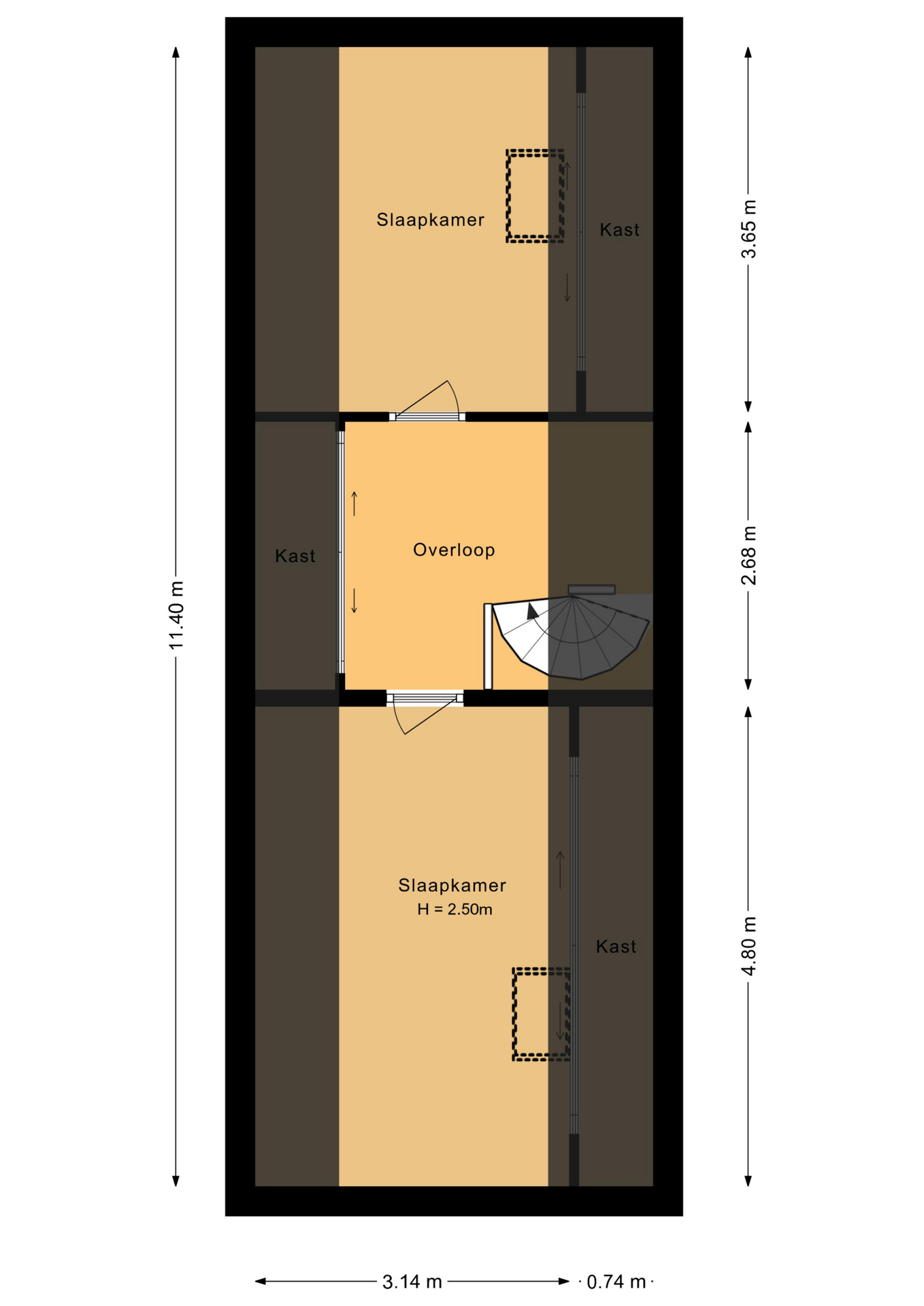
FIRST FLOOR
The first floor is accessed via a spiral staircase renovated in 2020. Here you will find four well-sized bedrooms and a spacious second bathroom.
All bedrooms are equipped with air conditioning, TV connections, and fixed internet connections, ensuring optimal comfort throughout the year. The front-facing rooms feature laminate flooring, while the two bedrooms at the rear and the landing are finished with fitted carpeting.
Both rear bedrooms have direct access to the characteristic balcony, which was also renewed in 2020. The master bedroom features a large built-in sliding wardrobe, which also houses the TV connection.
SECOND FLOOR
The second floor, accessible via a fixed spiral staircase, offers two additional bedrooms. The rear bedroom is also equipped with air conditioning. Both rooms include TV and internet connections and are neatly finished with laminate flooring and recessed spotlights.
On the landing, you will find a practical and spacious storage room with a neatly concealed second central heating system (2020).
GARDEN
The garden surrounding the house has been carefully landscaped and is impeccably maintained. Thanks to an advanced irrigation and drip system, supplied by a pump from the adjacent waterway, the greenery remains in excellent condition.
The spacious south-facing terrace, finished with large ceramic tiles that seamlessly continue from the interior flooring, is a wonderful place to enjoy sunny days. The electric sunshade can easily be operated via an app.
The outbuilding offers an exceptional amount of storage space and is even equipped with underfloor heating. At the front, there is a practical storage area housing the inverter for the solar panels. At the rear, you will find a luxurious relaxation area featuring a sauna with a bio-stove, allowing you to choose between a Finnish sauna, steam sauna, herbal sauna, or aromatic sauna. Additional features include a rain shower, toilet, and a wooden kitchenette with two professional-grade refrigerators—a true space dedicated to relaxation.
The adjacent lower terrace offers stunning views over the water and surrounding greenery, inviting long, relaxing evenings.
At the back of the garden, you will find several fruit trees, including a plum tree and a walnut tree, as well as a fully equipped vegetable garden with water and electricity. Atmospheric lighting has been installed throughout the garden, and a convenient rear access provides entry from outside.
This is a fantastic outdoor space where you can unwind, where children have ample room to play, and where you will experience an exceptional sense of space and freedom—a truly unique setting.
Almost the entire home is fitted with pleated insect screens, enhancing comfort during the warmer months.
This property is more than just a house—it is a place where luxury, tranquility, and nature come together. A home where every detail is right, and where you can enjoy space, views, and outdoor living every single day.
ABOUT WILNIS
Wilnis is a town in the province of Utrecht and forms part of the municipality of De Ronde Venen.
Key features of Wilnis:
Location: Situated in the green heart of the Netherlands, surrounded by polders and waterways, with convenient access to cities such as Utrecht and Amsterdam.
Nature: Known for its rural character, offering beautiful walking and cycling routes, and surrounded by water, including the river Amstel.
Living environment: A mix of modern developments and historic homes, popular among families seeking a peaceful, countryside lifestyle with good connections to urban areas.
Amenities: Despite its rural charm, Wilnis offers schools, shops, and sports facilities—providing a perfect balance between tranquility and convenience.
Water activities: The nearby Vinkeveense Plassen, famous for their clear waters, offer opportunities for swimming, boating, and various water sports.
In short, Wilnis is an attractive place to live for those who wish to enjoy the peace and beauty of traditional Dutch landscapes, while remaining close to major cities and amenities.